
안녕하세요. 캐슬체인 마에스트로0입니다.
오늘은 청담동에 새롭게 등장하는 초고급 아파트, '청담 르엘'에 대해 자세히 알아볼게요. 입지 분석부터 분양가까지 살펴보면서 왜 이 아파트가 그렇게 주목받고 있는지 함께 알아봅시다 :)
청담 르엘은 청담삼익아파트를 재건축하여 탄생한 단지예요.

원래는 지난해 분양이 예정되어 있었는데, 조합 내부 갈등으로 시공사가 공사비를 받지 못해 공사가 지연됐습니다. 다행히 공사비 협상이 타결되면서 공사가 정상화됐고, 올해 9월에 분양이 예정돼요.

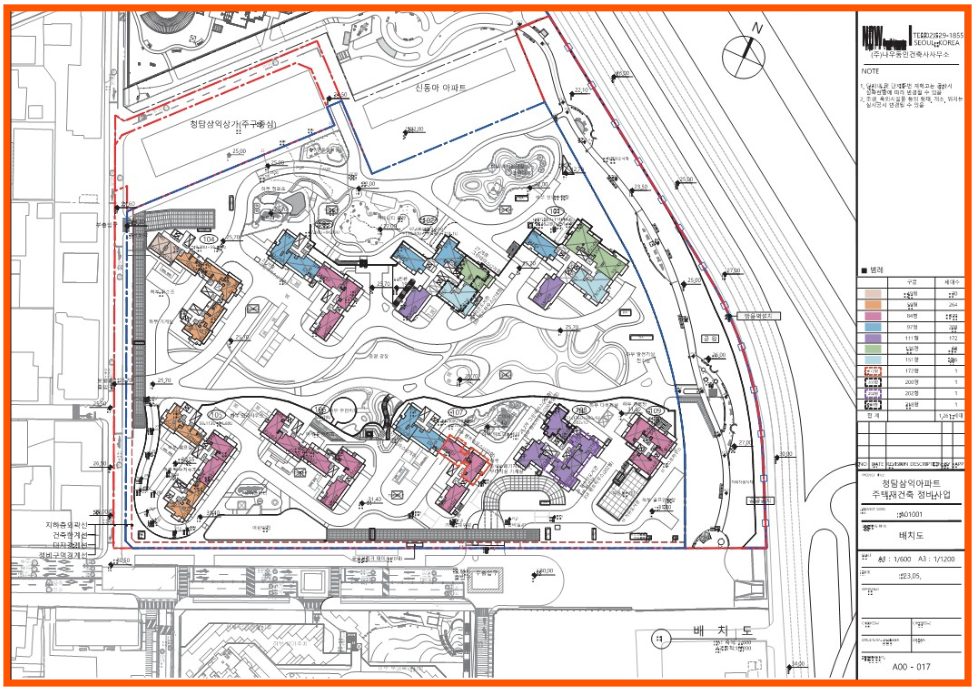
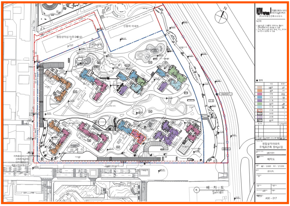
단지는 지하 3층에서 지상 35층까지 총 9개 동으로 구성되며, 총 1,261가구가 들어서게 돼요.

그런데 일반분양 물량은 176세대밖에 안 된다고 하네요. 또한, 현재 분양가 심사위원회 개최를 준비 중이라고 하며 최근 강남 지역의 다른 아파트 분양가를 참고하면, 평당 7천만 원 안팎이 예상돼요. 그러면 59형(25평)은 약 17.5억 원, 84형(34평)은 약 23.8억 원 정도가 되겠죠?
청담 르엘 입지 분석

청담 르엘의 가장 큰 장점은 한강변과 맞닿아 있어 70% 이상의 세대에서 한강 조망이 가능하다는 점이에요. 청담동에서 한강 조망이 가능한 아파트는 청담래미안로이뷰 이후 처음이라 더욱 주목받고 있어요. 아파트에서 한강공원까지 1분이면 도착할 수 있는데요. 이렇게 멋진 자연환경을 누릴 수 있는 아파트는 정말 드물죠.

무엇보다 서울 청담동 청담르엘의 교통도 아주 편리해요. 단지에서 70m 거리에 7호선 청담역 14번 출구가 있고, 9호선 봉은사역과도 약 700m 거리로 도보 10분 거리예요.

올림픽대로, 강변북로, 동부간선도로 등 주요 도로와도 가까워 서울 전역으로의 이동이 편리하답니다.

또한, 2027년 완공 예정인 위례신사선이 청담역을 지나가게 돼요. 이 경전철은 위례신도시에서 삼성역과 청담역, 신사역 등을 지나는데, 원래 용산역까지의 구간이었으나 신사역까지 단축됐어요.

청담 르엘 주변에는 생활 인프라도 잘 갖춰져 있어요. 압구정 로데오거리와 갤러리아 백화점, 청담동 명품거리, 삼성역의 코엑스와 현대백화점 등이 가까워 쇼핑하기에도 편리해요.

교육환경도 훌륭한데, 단지 바로 앞에는 봉은초등학교와 봉은중학교가 있어요. 이들 학교 주변으로는 청담도로공원, 청담배수지공원, 삼성해맞이공원 등이 있어 자연환경도 아주 좋답니다. 또 압구정역과 대치동에 형성된 명문 학원가도 가깝죠.
청담 르엘 분양가 정보
청담 르엘의 예상 분양가는 평당 6천만 원대로 보고 있어요.

최근 설계변경과 오염토 처리 등의 문제로 재건축 공사비가 많이 증가했지만, 분양가 상한제 때문에 평당 7천만 원을 넘기기는 어려울 것 같아요. 평당 6천만 원이라고 가정하면 84타입의 경우 약 20억 원 정도예요. 당첨되면 충분한 프리미엄을 볼 수 있을 거예요.

단지 배치도를 보면, 101동, 102동, 103동과 109동, 108동이 한강 조망이 좋아 인기가 많을 것으로 보이네요. 59타입 60세대와 84타입 91세대, 그리고 4개의 펜트하우스가 일반 분양 물건으로 나와요.

청담 르엘 주변 시세도 한번 살펴볼게요. 청담자이 아파트는 2012년 준공된 아파트로 33평형이 올 초에 28억 원에 거래되었어요. 청담린든그로브는 2017년 입주 아파트로 매매 호가가 32억 원 정도고,

래미안 라클래시는 2021년 입주 아파트로 매매 호가가 35억 원 정도예요. 이렇게 주변 시세를 보면 청담 르엘의 분양가가 낮게 책정돼도 꽤 높은 시세차익을 기대할 수 있을 것 같아요.
청담 르엘은 올해 로또 청약 중 하나로 꼽히고 있어요. 고급 아파트 브랜드인 롯데건설의 '르엘'이 대치동, 서초동, 잠원동에 이어 청담동에서도 그 명성을 이어갈 것으로 보이네요. 이 아파트는 고급스러운 디자인과 편리한 생활 인프라, 훌륭한 자연환경 등을 갖춘 매력적인 단지예요.
청담 르엘의 청약을 생각하신다면 철저한 자금 계획이 필요해요. 투기과열지구로 지정돼 있어 무주택자의 LTV가 50%이므로, 최소 50%는 현금으로 보유하고 있어야 해요. 또한, 실거주 의무도 예상되므로 갭투자는 어렵고, 철저한 자금 계획이 필요하답니다. 묻지 마 청약으로 무작정 청약을 넣었다가 예산 문제로 포기하는 경우 10년간 재당첨 제한이 있으니 꼭 확인하고 청약하세요!
오늘 청담 르엘에 대해 자세히 알아봤어요. 내 집 마련을 꿈꾸는 많은 분들께 도움이 되길 바라며 아래 함께 보면 좋은 포스팅도 참고해보시길 바랍니다! 감사합니다.
함께 보면 좋은 포스팅
분양가 상한제 뜻과 적용 지역, 전매 제한과 연관성
안녕하세요! 캐슬체인 마에스트로 0입니다. 오늘 서울 반포 래미안 원펜타스 분양일로 많은 분들이 관심을 가지고 계실텐데요. 서울 반포 래미안 원펜타스가 위치한 지역도 분양가 상한제 지역
jinriverblog.co.kr
DSR, LTV, DTI 뜻과 계산방법, 부동산 대출 용어 정리
안녕하세요! 캐슬체인 마에스트로0입니다. 오늘은 많은 분들이 헷갈려 하는 부동산 대출 관련 용어에 대해 알아보는 시간을 가질게요. 주택을 구매하려고 하면 반드시 알아야
jinriverblog.co.kr